聽新聞
0:00 0:00

香港大火示警 北市府宣布建築施工架新制 禁用竹木、一律用鋼管

為防香港大埔宏福苑大樓火災慘劇,台北市建管處宣布針對大樓外牆修繕工程實施4項規定,包含新建及外牆修繕一律採用鋼管施工架,全面禁用竹及木施工架等,今(29)日施行。

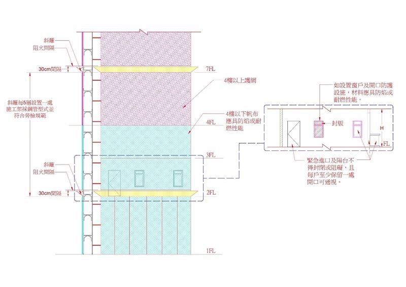
台北市建管處宣布針對大樓外牆修繕工程實施4項規定。圖為建管處新規示意圖。(圖/翻攝自台北市建管處官網)
台北市建管處宣布針對大樓外牆修繕工程實施4項規定。圖為建管處新規示意圖。(圖/翻攝自台北市建管處官網)

台北市建築管理工程處今天發布資料指出,去年發生的香港大埔宏福苑大樓外牆修繕工程,因竹架及防護網不具防焰性能,導致發生嚴重火災。為防患未然,主動強化台北市建築工地場所安全規範,針對施工鷹架、帆布及護網等實施精進管理措施。

北市建管處處長虞積學透過新聞資料指出,經邀消防局、勞動檢查處、台北市建築師公會及專家學者研擬後,為提升北市公共安全及強化工地管理,訂定4項管理規定新制。

建管處訂定管理規定,包含台北市的新建及外牆修繕工程一律採用鋼管施工架,嚴禁使用竹、木施工架。外牆修繕或室內裝修等工程,須搭設鷹架,外緣帆布、護網,應自斜籬連接處向上起算留設30公分間隔,以兼顧環境保護與安全防範。

此外,外牆修繕等工程的施工架帆布涉及建物窗戶、開口防護材料,應具備防焰或耐燃性能,並檢具試驗合格證明,考量市面產品取得試驗報告需時間,此項防焰或耐燃性能規範,自3月1日起施行。

建管處表示,最後1項規定是為確保緊急逃生動線,外牆修繕的建物在緊急進口及陽台,不可因施作封閉或阻礙,每戶應至少保留1處可供通視的開口。

虞積學說,建管處已於工程執照或核備函文加註規範文字,為加強橫向管理,建管處受理工地搭設鷹架申報後,將函轉資訊給消防局等機關,各單位將依權責實施稽查及管理。

他表示,工地承監造人及專任工程人員有維護施工場所安全及防範危險的法定責任,工地負責人應依規定隨時對工區施工鷹架,執行自主檢查填報檢查表,落實各項安全防護。建管處將視實際狀況滾動調整規定,以確保市民生命財產安全。

中央社
#建管處

CH54三立新聞台直播
大數據推薦
【#直播中LIVE】新台派上線 20260129
熱銷商品
頻道推薦
直播✦活動
三立新聞網三立新聞網為了提供更好的閱讀內容,我們使用相關網站技術來改善使用者體驗,也尊重用戶的隱私權,特別提出聲明。
了解最新隱私權聲明